 Bm28211
|
西宮市泉町 |
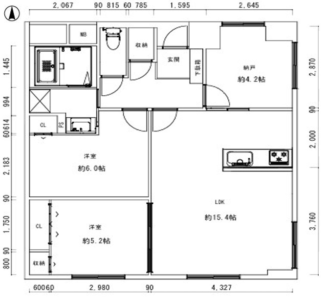
シーコートヤード西宮・香櫨園 4,490万円 |
阪神本線 香櫨園駅 |
− 15分 |
87.71m2 41.2m2 |
4LDK 7/11 |
2005/02 ( 築20年 ) 空室 |
|
  
|
◆南向き南東北角部屋で陽当たり通風良好!
◆2005年(平成17年)2月築のオール電化マンションです
◆専有面積87.71uの4LDKです/7階のお部屋で海の眺望あり
◆LDKは約16.7帖あり/LDは2面採光で明るいです/LDは床暖房付/全居室に収納あり/浴室は窓があり暖房乾燥機付/シューズインクロークあり/南から東・北へ続くバルコニーはスロップシンク付/玄関前に門扉付の専用ポーチあり
◆2025年7月リフォーム済:システムキッチン交換/ユニットバス交換/洗面化粧台交換/トイレ交換(温水洗浄便座付)/建具交換/給湯器交換/フローリング張替/クロス張替/CF張替/網戸張替/ハウスクリーニング/等
◆外壁はタイル貼り/オートロックと静脈認証システム/インターネット使用料無料/サイクルポート(自転車置場)無償/共用施設が充実(洗車場/コミュニティホール/キッチンスタジアム/ペット用洗場など)
◆敷地内平面自走式駐車場100%完備(使用料0円〜4000円/月)
◆ペット2匹まで飼育可でベランダにスロップシンク付(規約あり)
◆阪神「西宮駅」徒歩15分・「香櫨園駅」徒歩15分/阪神「西宮駅」へバス7分「西波止町」バス停まで徒歩3分
◆ミリオンタウン西宮前浜町(スーパーマンダイ等あり)・徒歩3分/セブンイレブン西宮前浜町店・徒歩3分/御前浜公園(香櫨園浜)・徒歩5分
◆人気の浜脇小学校・浜脇中学校区です
◆西宮市泉町1−108 |
Bm27939
|
西宮市獅子ケ口町6−16 |
コスモ苦楽園 4,500万円 |
阪急甲陽線 苦楽園口駅 |
− 10分 |
87.61m2 13.52m2 |
4LDK 4/5 |
1997/05 ( 築28年 ) 空家 |
|
  
|
◆南向き東南角部屋で陽当たり通風良好!
◆4階のお部屋で眺望あり♪
◆専有面積87.61uの4LDKです
◆LDKは約15.3帖あり/全居室6帖以上で各部屋に窓と収納あり/南側と東側の2か所にバルコニーあり/玄関前に門扉付きの専用ポーチ5.7uあり/専用ポーチに物入あり
◆敷地駐車場・空き有り(15,000円〜17,000円/月)
◆阪急「苦楽園口駅」徒歩10分・「甲陽園駅」徒歩10分
◆夙川公園・徒歩2分/松風公園・徒歩3分/神園公園・徒歩4分/阪急オアシス甲陽園店・徒歩8分/いかりスーパー甲陽園店・徒歩9分/ファミリーマート西宮甲陽園店・徒歩10分 |
Bm25244
|
西宮市豊楽町1−13 |
パレ・シェール苦楽園北夙川通り 4,780万円 |
阪急甲陽線 苦楽園口駅 |
− 7分 |
75.69m2 8.51m2 |
2LDK 5/5 |
2000/08 ( 築25年 ) 空室 |
|
  
|
◆南向き南西東の3方角部屋で陽当たり通風良好!
◆2000年(平成12年)8月築で外観は総タイル貼りの瀟洒なマンションです
◆専有面積75.69uの2LDKです/最上階・5階のお部屋で眺望あり
◆LDKは約22.4帖あり/LDKは南側と西側に窓あり/全居室に窓と収納あり/バルコニーは南側と西側の2カ所にあり
◆令和5年8月室内リフォーム済:クロス全室張替/キッチンコンロ新調/フローリング張替/CFフロア張替/ユニットバス新調(暖房乾燥機付)/洗面化粧台新調/トイレ新調/網戸新調/照明器具新設/給湯器新調/窓枠・建具修理/ハウスクリーニング/等
◆敷地内駐車場・権利付(管理費3,500円+修繕積立金1,000円=合計4,500円)
◆阪急「苦楽園口駅」徒歩7分・「夙川駅」徒歩16分
◆人気の北夙川小学校・徒歩1分/樋之池公園・徒歩4分/夙川センター(ショッピングセンター)・隣接/コープ苦楽園・徒歩5分/関西スーパー苦楽園店・徒歩6分/いかりスーパー夙川店・徒歩6分 |
Bm26722
|
西宮市老松町1−37 |
サンクタス苦楽園北夙川通り 4,780万円 |
阪急甲陽線 苦楽園口駅 |
− 12分 |
78.63m2 7.92m2 |
3LDK 5/5 |
2013/07 ( 築12年 ) 空家 |
|
  
|
◆ワイドスパン南向き陽当たり通風良好!
◆2013年(平成25年)7月築で外壁はタイル貼りです
◆5階のお部屋で西宮市内を望む眺望あり
◆専有面積78.63uの3LDKです
◆LDKは約18.7帖あり/LDはガス温水式床暖房付/システムキッチンはハンドシャワー水栓・ビルトイン浄水器・食洗機付/全居室に窓と収納あり/浴室はオートバスとミストサウナ機能付の暖房乾燥機あり/玄関前にアルコーブあり
◆敷地内駐車場・空き有り(14,000円〜17,000円/月)
◆ペット2匹まで飼育可(規約あり)
◆阪急「苦楽園口駅」徒歩12分・「夙川駅」徒歩16分
◆関西スーパー苦楽園店・徒歩3分/コープ苦楽園・徒歩3分/樋之池公園・徒歩4分/樋之池郵便局・徒歩4分/市立中央図書館越木岩分室・徒歩5分/市民サービスセンター越木岩分室・徒歩5分
◆人気の北夙川小学校区です(徒歩10分) |
Bm27997
|
西宮市川西町7−5 |
モンセーヌ香櫨園 4,780万円 |
阪神本線 香櫨園駅 |
− 2分 |
72.51m2 9.92m2 |
3LDK 4/5 |
2000/03 ( 築25年 ) 空室 |
|
  
|
◆東向き陽当たり良好!/4階のお部屋で眺望あり♪
◆2000年(平成12年)築の総タイル張りマンションです/専有面積72.51uの3LDKです
◆LDKは約16.2帖あり/東側バルコニーの最大出幅約2mあり/バルコニーにトランクルームあり
◆2025年リフォーム済:システムキッチン交換/ユニットバス交換/洗面化粧台交換/トイレ交換(温水洗浄便座付)/建具交換/フローリング張替/クロス張替/CF張替/ハウスクリーニング/等
◆敷地内駐車場・空き有り(9,000円〜16,000円/月)
◆阪神「香櫨園駅」徒歩2分/JR「さくら夙川駅」徒歩12分/阪急「夙川駅」徒歩16分
◆夙川オアシスロード・徒歩1分/西宮市立図書館・徒歩5分/サンディ香櫨園店・徒歩7分/森具公園・徒歩7分/ライフ夙川店・徒歩10分
◆人気の香櫨園小学校・浜脇中学校区です |
Bm27856
|
西宮市産所町11−20 |
藤和シティホームズ西宮駅前
 5,180万円 |
阪神本線 西宮駅 |
− 4分 |
81.6m2 24.01m2 |
3LDK 9/12 |
1998/02 ( 築27年 ) 空室 |
|
  
|
◆南向き南西北角部屋で陽当たり通風良好!
◆9階のお部屋で西宮市内を望む眺望あり
◆専有面積81.60uの3LDKです
◆LDKは約17.5帖あり/キッチンに勝手口あり/全居室に収納あり/浴室に窓あり/南側と西側と北側の3カ所にバルコニーあり
◆2025年6月リフォーム済:システムキッチン交換/浴室交換/洗面化粧台交換/給湯器交換/トイレ交換/フローリング張替/クロス張替/CF張替/ハウスクリーニング/等
◆敷地内駐車場・空き無し20,000円/月
◆ペット飼育可(規約あり)
◆阪神「西宮駅」徒歩4分/JR「さくら夙川駅」徒歩7分/阪急「夙川駅」徒歩15分
◆エビスタ西宮・徒歩2分/西宮郵便局・徒歩2分/産所公園・徒歩2分/エイヴィスプラザ(ダイエーや医療フロアあり)・徒歩5分
◆人気の浜脇小学校・浜脇中学校区です |
Bm27829
|
西宮市下葭原町1−32 |
ファミール西宮・夙川公園 5,280万円 |
阪神本線 香櫨園駅 |
− 10分 |
83.24m2 23.53m2 |
3LDK 2/6(B1) |
1997/03 ( 築28年 ) 空家 |
|
  
|
◆南向き東南角部屋で陽当たり通風良好!
◆1997年(平成9年)に丸紅旧分譲/竹中工務店旧施工の総タイル貼りのハイグレードマンションです
◆専有面積83.24uの3LDKです/LDKは約17.4帖あり/アウトポール設計のすっきりした間取りです/1418サイズの浴室は窓あり/玄関前に門扉付きの専用ポーチあり
◆2025年7月末リフォーム済:システムキッチン交換(食洗機付)/ユニットバス交換(追炊機能付)/洗面化粧台交換/トイレ交換(温水洗浄便座付)/フロアタイル張替/クロス貼替/CF張替/建具交換/給湯器交換/和室を洋室に変更/網戸張替/ハウスクリーニング/等
◆オートロック付/宅配ボックス付/大規模修繕工事済(2023年3月完了)
◆敷地内駐車場・空き有り(16,000円/月)
◆阪神「香櫨園」駅徒歩11分/JR「さくら夙川駅」徒歩18分
◆夙川オアシスロード・徒歩1分/大浜公園・徒歩1分/セブンイレブン西宮大浜町店・徒歩4分/御前浜公園(香櫨園浜)・徒歩4分/ミリオンタウン西宮前浜町(スーパーマンダイ等あり)徒歩5分/西宮市立図書館・徒歩5分
◆人気の香櫨園小・浜脇中学校区です |
Bm27959
|
西宮市清水町5−5 |
グランステイツ夙川
 5,280万円 |
阪急神戸線 夙川駅 |
− 8分 |
83.73m2 8.04m2 |
3LDK 2/7 |
1996/09 ( 築29年 ) 居住中 |
|
  
|
◆西西北の3方角部屋で陽当たり通風良好!
◆野村不動産(株)分譲・竹中工務店(株)施工
◆専有面積83.73uの3LDKです
◆LDKは約17.3帖あり/全居室に窓と収納あり/玄関前にアルコーブあり
◆敷地内駐車場・空き無し20,000円〜22,000円/月
◆阪急「夙川駅」徒歩8分/JR「さくら夙川駅」徒歩10分/阪神「西宮駅」徒歩15分
◆西田公園・徒歩2分/コープ夙川・徒歩3分/ココカラファイン西田店・徒歩7分/夙川グリーンタウン(ダイエー等あり)・徒歩9分
◆人気の大社小学校・大社中学校区です |
Bm27950
|
西宮市甲陽園山王町2−25 |
ジオ甲陽園山王町アーバンビュー 5,480万円 |
阪急甲陽線 甲陽園駅 |
− 5分 |
97.77m2 26.28m2 |
3LDK 1/5 |
2004/03 ( 築21年 ) 空家 |
|
  
|
◆南向き南西角部屋で陽当たり通風良好!
◆南ひな壇立地のお部屋で開放感あり♪
◆専有面積は99.70uの3LDKです
◆LDKは約23.6帖あり/LD2ケ所に床暖房付/キッチンは窓あり/各居室は6帖以上あり全居室に窓と収納あり/テラスにスロップシンク付/南向きの専用庭あり/玄関前に門扉付の専用ポーチ3.33uあり/
◆平成29年11月リフォーム済:クロス全室張替(一部アクセントクロス貼り)/キッチンコンロ入替・水栓交換/各部リペア/ハウスクリーニング/等
◆ペット飼育可(規約あり)
◆敷地内駐車場・空き有り13,000円〜17,000円/月
◆阪急「甲陽園駅」徒歩6分
◆いかりスーパー甲陽園店・徒歩6分/阪急オアシス甲陽園店・徒歩7分 |
Bm22415
|
西宮市千歳町1−12 |
パーク・ハイム夙川千歳町 5,490万円 |
JR東海道線 さくら夙川駅 |
− 5分 |
83.24m2 9.94m2 |
2LDK 5/5 |
1987/03 ( 築38年 ) 空家 |
|
  
|
◆南向き陽当たり通風良好!
◆専有面積83.24uの2LDKです
◆LDKは約22.0帖あり/全居室に窓と収納あり/洋室は約6.3帖はウォークインクローゼット付/最上階・5階のお部屋で南北両方向に眺望あり
◆令和3年6月室内リフォーム済:各居室クロス張替/各居室・廊下塩ビタイル貼/システムキッチン交換/カップボード交換/浴室交換/トイレ交換/洗面化粧台交換/給湯器交換/等
◆敷地内平面駐車場・空き有り(14,000円/月)
◆JR「さくら夙川駅」徒歩5分/阪急「夙川駅」徒歩9分/阪神「西宮駅」徒歩9分
◆コープ夙川・徒歩4分/西田公園・徒歩5分/夙川公園・徒歩6分/スーパーマルハチ西宮店・徒歩8分/エビスタ西宮(阪神百貨店)・徒歩9分/夙川グリーンタウン(ダイエー夙川店などあり)・徒歩9分
◆人気の安井小学校・大社中学校区です |
Bm28036
|
西宮市川東町10−20 |
夙川グランドハイツ
 5,490万円 |
阪神本線 香櫨園駅 |
− 2分 |
88.9m2 80.1m2 |
3LDK 14/14(B1) |
1998/04 ( 築27年 ) 空家 |
|
  
|
◆南向き陽当たり通風良好!
◆最上階・14階のお部屋で西宮市内一望の眺望あり♪
◆専有面積88.90uの3LDKです/全居室に窓と収納あり
◆オートロック付/宅配ロッカー付
◆敷地内駐車場・空きあり(15,000円〜16,000円/月)
◆阪神「香櫨園駅」徒歩2分/JR「さくら夙川駅」徒歩10分/阪急「夙川駅」徒歩13分
◆夙川公園・夙川さくら道に隣接したマンションです/サンディ西宮香櫨園店・徒歩5分/西宮市立図書館・徒歩5分/森具公園・徒歩8分/川添公園・徒歩8分/ライフ夙川店・徒歩11分/マンダイ西宮前浜店・徒歩11分
◆人気の香櫨園小学校・浜脇中学校区です |
Bm25242
|
西宮市神垣町10−31 |
フォレスティア苦楽園 5,580万円 |
阪急甲陽線 苦楽園口駅 |
− 15分 |
116.13m2 23.28m2 |
3LDK 6/6(B1) |
1987/12 ( 築38年 ) 空室 |
|
  
|
◆南向き南東北角部屋で陽当たり通風良好!
◆専有面積116.13uの3LDKです/最上階6階のお部屋で西宮市内を望む眺望あり
◆LDKは約24.6帖あり/全居室に窓と収納あり/浴室は暖房乾燥機付/バルコニーは南側と東側にあり/北側にルーフバルコニー約30uあり/オートロックあり/宅配ボックスあり
◆2015年(平成27年)9月に住友林業(株)によりマンション1棟の共用部を全てリノベーション済
◆2016年(平成28年)3月室内リノベーション済
◆ALSOKの24時間セキュリティシステムと防犯カメラシステム付
◆ペット飼育可(規約あり)
◆自走式地下平面駐車場・空き無し(12,000円〜15,000円/月)
◆阪急「苦楽園口駅」徒歩15分・「夙川駅」徒歩23分/阪神「西宮駅」バス10分「北城山町」バス停徒歩4分
◆広田山公園・徒歩2分/関西スーパー広田店・徒歩8分/関西スーパー大社店・徒歩8分/ロイヤルホームセンター・徒歩11分
◆人気の大社小学校区です |
Bm28170
|
西宮市御茶家所町8−15 |
ロイヤルシャトー夙川公園 5,580万円 |
阪急神戸線 夙川駅 |
− 7分 |
71.07m2 |
3LDK 6/6 |
1996/03 ( 築29年 ) 空室 |
|
  
|
◆南向き陽当たり良好!
◆専有面積71.07uの3LDKです
◆LDKは約15.4帖あり/最上階6階のお部屋で眺望あり♪
◆2025年室内リフォーム済
◆敷地内駐車場・空き有り20,000円/月
◆阪急「夙川駅」徒歩7分/JR「さくら夙川駅」徒歩7分/阪神「香櫨園駅」徒歩7分
◆夙川公園・徒歩2分/片鉾池・徒歩3分/ライフ夙川店・徒歩5分/夙川グリーンタウン(ダイエーと専門店街あり)・徒歩6分/セブンイレブン西宮夙川店・徒歩7分 |
 Bm27595
|
西宮市霞町5−20 |
夙川レックスマンション
 5,780万円 |
阪急神戸線 夙川駅 |
− 5分 |
100.6m2 19.58m2 |
4LDK 2/5(B1) |
1981/02 ( 築44年 ) 空室 |
|
  
|
◆南東向きの角部屋で陽当たり通風良好!
◆専有面積100.60uの4LDKです
◆LDKは約18.0帖あり/全居室に窓と収納あり/バルコニーは南東側と北東側の2カ所にあり/オートロックあり/宅配ボックスあり
◆2025年9月リフォーム完成渡し:システムキッチン交換/ユニットバス交換/洗面化粧台交換/トイレ交換/建具交換/フローリング張替/クロス張替CF張替/ハウスクリーニング/等
◆敷地内駐車場・空き有り(17,500円〜19,500円/月)
◆阪急「夙川駅」徒歩5分/JR「さくら夙川駅」徒歩10分/阪神「香櫨園駅」徒歩13分
◆セブンイレブン阪急夙川駅南口店・徒歩2分/夙川グリーンタウン(ダイエー等あり)・徒歩3分/夙川公園・徒歩3分/片鉾池・徒歩4分/ライフ夙川店・徒歩7分/夙川グリーンプレイス・徒歩10分/夙川駅周辺に生活施設が充実しています |
 Bm28060
|
西宮市結善町1−14 |
ディオレ夙川公園
 5,880万円 |
阪急神戸線 夙川駅 |
− 8分 |
80.51m2 9.66m2 |
3LDK 3/4 |
1996/02 ( 築29年 ) 空室 |
|
  
|
◆3階の西向きのお部屋で陽当たり良好!
◆外壁は高級感のあるタイル張りです
◆専有面積80.51uの3LDKです/西側は夙川公園が望めます
◆LDKは約18.2帖あり/全居室に収納あり/洋室約6.0帖はウォークインクローゼット付/オートロックと宅配ボックス付
◆敷地内駐車場・空き有り14,000円〜22,000円/月
◆阪急「夙川駅」徒歩8分・「苦楽園口駅」徒歩7分/JR「さくら夙川駅」徒歩12分
◆夙川近くの閑静住宅街です
◆夙川さくら道・徒歩2分/コープ夙川・徒歩6分/ファミリーマート西宮名次町店・徒歩6分/ウエルシア西宮北名次店・徒歩8分/夙川グリーンタウン(ダイエーや専門店街あり)・徒歩9分 |
Bm24784
|
西宮市松園町8−26 |
マークス夙川スティーレ 5,980万円 |
阪急神戸線 夙川駅 |
− 6分 |
74.15m2 8.4m2 |
2LDK 3/5(B1) |
2006/07 ( 築19年 ) 居住中 |
|
  
|
◆3階の北西角部屋で陽当たり眺望良好!
◆2006年(平成18年)7月大林組(株)施工の高級タイル張りのハイグレードマンションでホテルライクな玄関ホールです
◆専有面積74.15uの2LDKです
◆LDKは約20.0帖あり/LDは床暖房付/キッチンは勝手口あり/全居室に窓と収納あり/複層ガラス仕様/バリアフリー設計/1418サイズの浴室は窓がありミストサウナ機能付の暖房乾燥機あり/西側バルコニーはスロップシンク付
◆駐車場敷地権付(管理費1,970円+修繕積立金4,260円=合計4,260円/月)
◆ペット2匹まで飼育可(規約あり)
◆阪急「夙川駅」徒歩6分/JR「さくら夙川駅」徒歩13分/阪神「香櫨園駅」徒歩13分
◆皿池公園・徒歩4分/夙川グリーンプレイス・徒歩5分/夙川グリーンタウン(ダイエー等あり)・徒歩5分/ライフ夙川店・徒歩6分/夙川公園・徒歩6分 |
Bm28047
|
西宮市清水町6−5 |
グランステイツ夙川アネックス 5,980万円 |
阪急神戸線 夙川駅 |
− 9分 |
91.92m2 17.96m2 |
2LDK 5/5 |
1996/09 ( 築29年 ) 居住中 |
|
  
|
◆南向き南東北角部屋で陽当たり通風良好!
◆野村不動産(株)旧分譲/竹中工務店(株)施工
◆専有面積91.92uの3LDKです/最上階・5階のお部屋で眺望あり♪
◆LDKは約17.5帖あり/全居室6帖以上で各部屋に窓と収納あり/南側にバルコニー2か所あり/ルーフバルコニー17.2uあり(使用料630円/月)/セコムセキュリティシステム付
◆リフォーム履歴あり 2019年(令和1年9月頃:システムキッチン交換(IHコンロ)/ユニットバス交換(暖房乾燥機付)/洗面化粧台交換/トイレ交換/CF張替/畳交換/ふすま張替え/等 2022年(令和4年12月頃:給湯器交換
◆2025年2月大規模修繕工事済
◆敷地内駐車場・空き有り16,000円〜22,000円/月
◆阪急「夙川駅」徒歩9分・「苦楽園口駅」徒歩15分/JR「さくら夙川駅」徒歩11分/阪神「西宮駅」徒歩15分
◆西田公園・徒歩3分/コープ夙川・徒歩4分/ニテコ池・徒歩5分/ローソン西宮千歳町店・徒歩7分/ファミリーマート西宮桜谷店・徒歩8分/大社小学校・徒歩5分/大社中学校・徒歩15分 |
Bm27517
|
西宮市北名次町13−22 |
サンクタス夙川北名次町 6,250万円 |
阪急甲陽線 苦楽園口駅 |
− 7分 |
83.01m2 11.48m2 |
3LDK 5/6(B1) |
2012/06 ( 築13年 ) 居住中 |
|
  
|
◆南東向き陽当たり良好!/5階のお部屋で眺望ありPんプ
◆2012年(平成24年)6月築のオール電化マンションです
◆専有面積83.01uの3LDKです
◆LDKは約18.8帖あり/LDの2ケ所に床暖房付/システムキッチンはIHクッキングヒーターと浄水器・食洗機付/全居室に収納あり/浴室は暖房乾燥機付/トイレは手洗いカウンター付/バルコニーはスロップシンク付
◆敷地内駐車場・空き有り 15,000円〜23,000円/月
◆ペット飼育可(規約あり)
◆阪急「苦楽園口駅」徒歩7分
◆夙川公園・徒歩1分/ファミリーマート西宮獅子ケ口店・徒歩1分/ウエルシア西宮北名次店・徒歩6分/いかりスーパー夙川店・徒歩9分 |
Bm27949
|
西宮市甲陽園若江町5−26 |
ライオンズ甲陽園グラングレイド 6,280万円 |
阪急甲陽線 甲陽園駅 |
− 1分 |
88.65m2 12.24m2 |
3LDK 4/7 |
2015/03 ( 築10年 ) 空室 |
|
  
|
◆南向き陽当たり良好!
◆2015年(平成27年)3月に大京不動産(株)旧分譲/室内は丁寧にお使いです
◆専有面積88.65uの3LDKです/4階のお部屋で眺望あり
◆LDKは約19.7帖あり/リビングダイニングは床暖房付/全居室に収納あり/洋室約7.5帖はウォークインクローゼット付/浴室は保温浴槽でミストサウナ機能付の暖房乾燥機あり/バルコニーにスロップシンクあり/トランクルーム0.4uあり(使用料無償)/玄関に耐震枠付ディンプル&ダブルロック
◆コンシュルジュサービスあり
◆敷地内駐車場・空き有り(13,500円〜23,000円/月)
◆ペット2匹まで飼育可(規約あり)
◆阪急「甲陽園駅」徒歩1分
◆いかりスーパー甲陽園店・徒歩1分/阪急オアシス甲陽園店・徒歩2分/ファミリーマート甲陽園駅前店・徒歩3分/コープ甲陽園・徒歩11分
◆人気の甲陽園小学校・大社中学校区です |
Bm27795
|
西宮市高塚町7−145 |
ブリリア夙川高塚町 6,480万円 |
阪急神戸線 夙川駅 |
− 13分 |
82.3m2 11.47m2 |
3LDK 1/4 |
2023/07 ( 築2年 ) 居住中 |
|
  
|
◆南東向き陽当たり良好!
◆2023年(令和4年)10月に(株)東京建物旧分譲
◆専有面積82.30uの3LDKです/南ひな壇で西宮市内を望む眺望あり♪
◆LDKは約17.1帖あり /LDの2ケ所に床暖房付/オープン型のキッチンカウンターでガラストップコンロと食洗機・浄水器付/全居室にウォークインクローゼットあり/浴室は1418サイズでミストカワック機能の暖房乾燥機あり/Low-E複層ガラス仕様/専用庭あり/玄関前横にトランクルーム0.27u付/アウトポール設計
◆グランドエントランス横にオーナーズラウンジあり/共用部のガーデンテラスからは六甲山系が望めます/24時間365日対応のALSOK警備システムを導入
◆敷地内駐車場・空き無し7,500円〜17,000円/月
◆ペット2匹まで飼育可(規約あり)
◆阪急「夙川駅」徒歩13分/JR「さくら夙川駅」徒歩20分/山手幹線を走るバスあり
◆高塚公園・徒歩2分/仲ノ池・徒歩7分/芦屋翠ケ丘郵便局・徒歩12分/夙川グリーンプレイス・徒歩13分/コープミニ大谷・徒歩13分 |