Bk27572
|
西宮市苦楽園三番町5−26 |
2,780万円 |
阪急神戸線 夙川駅 |
13分 9分 |
131.54m2 157.68m2 |
4LDK 木造 |
S63/03 空家 |
|
  
|
◆南ひな壇立地で陽当たり良好!
◆西宮市内と大阪湾一望の眺望あり
◆電動シャッター付の駐車場あり
◆建替用の土地としてもご検討ください
◆阪急「夙川駅」バス13分「苦楽園」バス停まで徒歩9分・「苦楽園口駅」バス9分「苦楽園」バス停まで徒歩9分/JR「芦屋駅」バス13分「苦楽園」バス停まで徒歩9分 |
Bk26988
|
西宮市苦楽園四番町15−33 |
3,980万円 |
阪急神戸線 夙川駅 |
12分 7分 |
171.96m2 148.08m2 |
6LDK 木造 |
H10/05 空家 |
|
  
|
◆南向き東南角地で陽当たり通風良好!(南側は隣地通路です)
◆南ひな壇立地で西宮市内と大阪湾一望の眺望あり♪
◆土地面積約52.01坪あり
◆建物面積約44.79坪の6LDKです
◆LDKは約20.7帖あり/全居室に窓と収納あり/2階に眺望が楽しめるビューカウンターあり
◆駐車場は3台分あり
◆阪急「夙川駅」へバス12分「苦楽園」バス停まで徒歩7分・「苦楽園口駅」バス9分「苦楽園」バス停まで徒歩7分/JR「芦屋駅へバス12分「苦楽園」バス停まで徒歩7分 |
 Bk28333
|
芦屋市涼風町 |
6,180万円 |
阪神本線 阪神芦屋駅 |
9分 2分 |
220.8m2 121.2m2 |
4SLDK+納戸 軽量鉄骨 |
H25/09 空家 |
|
  
|
◆南西側と北東側の両面道路で陽当たり通風良好!
◆2012年(平成25年)91月に積水ハウス(株)設計・施工で軽量鉄骨造の注文建築です
◆土地面積約66.79坪あり
◆建物面積約31.55坪の4LDK+WIC+納戸です
◆LDKは約16.9帖あり/洋室約7.7帖は納戸とウォークインクローゼット付
◆駐車場は並列2台分あり
◆阪神「芦屋駅」バス9分「涼風町」バス停徒歩2分
◆涼風西公園・徒歩1分/ライフガーデン潮芦屋(スーパーマルハチやスーパーコーナン等あり)・徒歩9分
◆芦屋市涼風町12−3 |
Bk28306
|
西宮市毘沙門町 |
 6,280万円 |
阪急甲陽線 甲陽園駅 |
− 15分 |
289.26m2 121.72m2 |
4SLDK 木造 |
R06/01 居住中 |
|
  
|
◆陽当たり通風良好!
◆土地面積約87.5坪あり
◆2024年(令和6年)1月築の美宅です
◆建物面積約36.82坪の4SLDKです
◆外構工事の必要あり
◆駐車場は3台分あり
◆阪急「甲陽園駅」徒歩15分・「苦楽園口駅」徒歩17分
◆毘沙門公園・徒歩1分/樋之池公園・徒歩9分/コープ苦楽園・徒歩12分/関西スーパー苦楽園店・徒歩13分/阪急オアシス甲陽園店・徒歩13分/いかりスーパー甲陽園店・徒歩14分
◆西宮市毘沙門町3−14 |
Bk24994
|
西宮市鷲林寺南町26−16 |
6,800万円 |
阪急神戸線 夙川駅 |
15分 3分 |
442.41m2 214.37m2 |
1SLDK+納戸 鉄筋コンクリート造 |
H04/07 居住中 |
|
  
|
◆南西角地で陽当たり良好!
◆土地面積約133.82坪あり
◆RC造で建物面積約64.84坪の1LDK+納戸+物入です
◆LDKは約28.43帖あり/オール電化です/セカンドハウスにもオススメです
◆シャッター付ビルトインガレージは約30.54帖分あり/オープンガレージと合わせて合計4台駐車可
◆阪急「夙川駅」へバス15分「鷲林寺南口」バス停まで徒歩3分
◆剣谷第三公園・徒歩2分 |
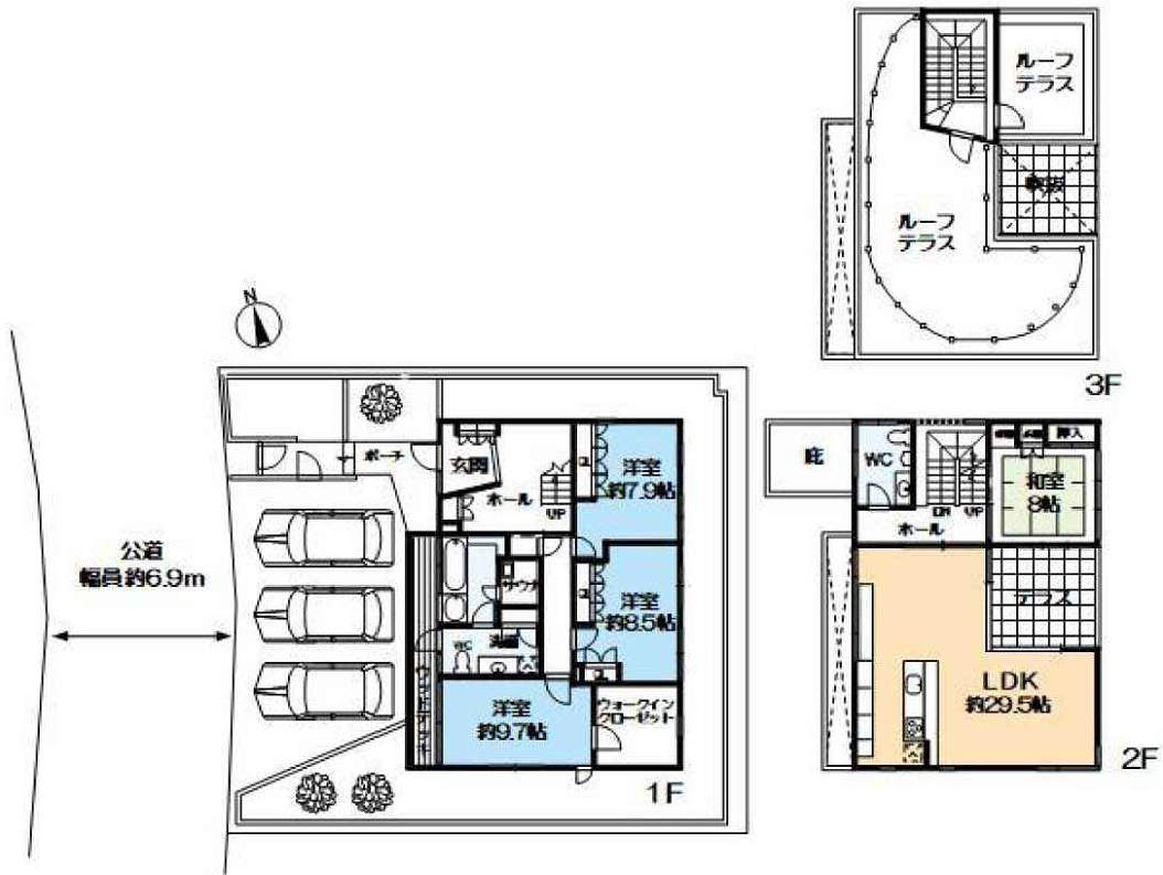
Bk27356
|
西宮市鷲林寺南町23−12 |
7,280万円 |
阪急神戸線 夙川駅 |
13分 3分 |
275.61m2 180.24m2 |
4LDK 鉄骨造 |
H14/04 空家 |
|
  
|
◆公道幅員約6.0mに面し陽当たり通風良好!
◆鉄骨造の2002年(平成14年)4月築でオール電化のデザイナーズ住宅です
◆LDKは約29.5帖あり/玄関・LDKは大理石貼り/浴室・洗面室は床暖房付/浴室はサウナ・ジャグジー・水風呂付/屋上はルーフテラス仕様/屋根付カーポートは3台分あり
◆2025年3月リフォーム済:正面外壁塗装/クロス張替/畳・襖張替/スイッチカバー取替/TVインターホン交換/温水洗浄便座交換/クローゼット鏡交換/室内塗装/補修工事/ハウスクリーニング/等
◆阪急「夙川駅」バス15分「鷲林寺南口」バス停まで徒歩3分 |
Bk27552
|
西宮市美作町2−20 |
7,380万円 |
阪急甲陽線 苦楽園口駅 |
− 15分 |
175.6m2 113.39m2 |
3LDK 木造 |
H30/03 居住中 |
|
  
|
◆南ひな壇立地で陽当たり良好!
◆土地面積約53.11坪あり
◆2018年3月築で建物面積約34.3坪の3LDKです
◆LDKは約20.7帖あり/全居室に窓と収納あり/インナーテラスと広いバルコニーあり
◆駐車場は並列3台分あり
◆阪急「苦楽園口駅」徒歩15分
◆樋之池公園・徒歩6分/セブンイレブン西宮樋之池町店・徒歩7分/関西スーパー苦楽園店・徒歩8分/コープ苦楽園・徒歩8分/ローソン西宮樋之池町店・徒歩8分 |
Bk28198
|
芦屋市海洋町5−11 |
8,280万円 |
阪神本線 阪神芦屋駅 |
9分 2分 |
203.34m2 130.98m2 |
4LDK+S 軽量鉄骨造 |
H22/12 居住中 |
|
  
|
◆東向き陽当たり通風良好!
◆土地面積約61.51坪あり
◆2010年3月に積水ハウス(株)施工の軽量鉄骨造で建物面積約39.62坪の4LDK+WICです
◆LDKは約22.5帖あり/洋室約9.5帖はウォークインクローゼットあり
◆駐車場は並列3台分あり
◆阪神「芦屋駅」バス8分「陽光町」バス停まで徒歩2分
◆親水中央公園・徒歩1分/芦屋市総合公園・徒歩4分/ライフガーデン潮芦屋(スーパーマルハチやコーナン等あり)・徒歩5分/ファミリーマート南芦屋浜店・徒歩6分 |
Bk28112
|
芦屋市高浜町14−15 |
8,580万円 |
阪神本線 阪神芦屋駅 |
9分 4分 |
232.68m2 139.11m2 |
4LDK 木造 |
H21/07 居住中 |
|
  
|
◆南向き南西角家で陽当たり通風良好!
◆南側公道幅員約6.3mと西側公道幅員約6.4m公道に面した角地です
◆土地面積約70.38坪あり
◆2009年(平成21年)7月築でハウスメーカー施工の4LDKです
◆LDKは約21.4帖あり/全居室に窓と収納あり
◆L型キッチン・エコキュート・トイレ・ユニットバス交換済
◆駐車場は3台分あり
◆阪神「芦屋駅」バス8分「シーサイドセンター」バス停まで徒歩5分/JR「芦屋駅」バス13分「シーサイドセンター」バス停まで徒歩5分
◆高浜公園・徒歩1分/ツルハドラッグ芦屋浜シーサイド店 ・徒歩4分/シーサイドセンター(ダイエーグルメシティ等がある複合施設)・徒歩6分/浜風あすのこども園・徒歩5分 |
Bk27425
|
西宮市甲陽園西山町5−7 |
10,980万円 |
阪急甲陽線 甲陽園駅 |
− 3分 |
264.51m2 137.25m2 |
3LDK 木造 |
H23/07 居住中 |
|
  
|
◆南西向き陽当たり通風良好!
◆南ひな壇立地で西宮市内と海を望む眺望あり
◆土地面積約80.01坪あり
◆2011年にセキスイハウス施工で建物面積約41.51坪の2LDK+2LDKです
◆1階の天井高は約2.5mあり/LDKは床暖房付/アルミ樹脂複合サッシ/お庭でバーべキューも出来ます
◆カースペースは3台分あり
◆阪急「甲陽園駅」徒歩3分
◆阪急オアシス甲陽園店・徒歩3分/いかりスーパー甲陽園店・徒歩4分/ファミリーマート甲陽園駅前店。徒歩5分 |
Bk26871
|
芦屋市伊勢町6−6 |
13,800万円 |
阪神本線 阪神芦屋駅 |
− 12分 |
464.84m2 179.68m2 |
5SLDK 軽量鉄骨造 |
H09/08 居住中 |
|
  
|
◆南向き陽当たり良好!
◆南側公道幅員約8.3mに面す
◆土地約140.61坪あり
◆軽量鉄骨造の建物は約42.86坪の5SLDKです
◆2階の全居室に窓と収納あり/南向きのバルコニー2カ所あり
◆駐車場は3台分あり
◆阪神「芦屋駅」徒歩12分/JR「芦屋駅」徒歩17分/JR「芦屋駅」バス7分「呉川町」バス停徒歩4分
◆ライフ芦屋呉川町店・徒歩4分/セブンイレブン芦屋呉川町店・徒歩5分/コープ浜芦屋・徒歩5分/芦屋市立図書館・徒歩5分/呉川公園・徒歩6分 |
Bk28072
|
芦屋市東山町20−12 |
15,000万円 |
JR東海道線 JR芦屋駅 |
− 15分 |
526.2m2 255.41m2 |
9LDK 木造 |
S62/08 空家 |
|
  
|
◆南ひな壇立地で陽当たり通風良好!
◆土地面積約159.17坪あり
◆建物面積約77.26坪の9LDKです
◆広い南庭があり芦屋市内を望む眺望あり♪
◆駐車場は4台分あり
◆建替え用の土地としてもご検討ください。
◆JR「芦屋駅」徒歩15分/阪急「芦屋川駅」徒歩16分
◆東山公園・徒歩3分/コープミニ東山・徒歩4分/セブンイレブン芦屋東山町店・徒歩5分/ウエルシア芦屋朝日ケ丘店・徒歩6分 |
Bk26460
|
西宮市甲陽園目神山町1−50 |
17,800万円 |
阪急甲陽線 甲陽園駅 |
− 13分 |
726m2 420.21m2 |
6SLDK 木造 |
H09/11 居住中 |
|
  
|
◆南ひな壇立地で陽当たり良好!
◆西宮市内と海の眺望あり♪
◆土地面積約219.65坪(726u)あり
◆建物面積約127.11坪(420.21u)の6SLLDDK+3LDKです
◆平成9年(1997年)11月築で2世帯住宅も可能な間取です
◆駐車場は6台分あり
◆緑豊かな閑静な住宅街です
◆阪急「甲陽園駅」徒歩13分 |
Bk27700
|
西宮市豊楽町7−34 |
 18,000万円 |
阪急甲陽線 苦楽園口駅 |
− 8分 |
331.13m2 276.07m2 |
5LDK 木造+鉄筋コンクリート造 |
H12/08 居住中 |
|
  
|
◆南向き東南角家で陽当たり通風良好!/南ひな壇立地で西宮市内を望む眺望あり♪
◆土地面積約100.16坪あり
◆木造+鉄筋コンクリート造で建物面積約83.51坪の5LDKです
◆三菱地所ホーム施工の家で全館空調エアロテック設置
◆駐車場から室内階段で住居内へ上がれます
◆掘込車庫並列2台+カースペース1台=3台分あり
◆阪急「苦楽園口駅」徒歩8分
◆豊楽公園・徒歩1分/樋之池公園・徒歩6分/コープ苦楽園・徒歩7分/関西スーパー苦楽園店・徒歩9分
◆人気の北夙川小学校区です(徒歩3分) |
Bk28013
|
西宮市松ケ丘町1−14 |
19,000万円 |
阪急神戸線 夙川駅 |
− 10分 |
352.66m2 137.57m2 |
4SLDK+納戸 軽量鉄骨造 |
H25/07 居住中 |
|
  
|
◆陽当たり良好!
◆土地面積約106.67坪あり
◆積水ハウス(株)施工で建物面積約41.61坪の4LDK+納戸+WICですで
◆駐車場は4台分あり
◆阪急「夙川駅」徒歩10分・「苦楽園口駅」徒歩13分/JR「さくら夙川駅」徒歩19分
◆木津山公園・徒歩1分/いかりスーパー夙川店・徒歩6分/スギ薬局苦楽園店・徒歩6分/ローソン西宮久出ケ谷店・徒歩7分 |
Bk25558
|
芦屋市山手町17−23 |
19,800万円 |
阪急神戸線 芦屋川駅 |
− 13分 |
563.45m2 340.12m2 |
5LDK 鉄筋コンクリート造 |
H04/07 空家 |
|
  
|
◆南ひな壇立地で陽当たり眺望良好!
◆土地面積約170.44坪あり
◆鉄筋コンクリート造で建物面積約102.88坪の4LDK+ラウンジです
◆ラウンジ(パーティールーム)があり多数の来客にも対応可能です/広い南庭あり
◆区画の整った閑静な住宅街です
◆駐車場は5台分あり
◆阪急「芦屋川駅」徒歩13分/JR「芦屋駅」徒歩20分 |
Bk27687
|
西宮市殿山町1−47 |
19,800万円 |
阪急神戸線 夙川駅 |
− 7分 |
386.88m2 184.02m2 |
4LDK 木造+鉄筋コンクリート造 |
H15/10 空家 |
|
  
|
◆東向き陽当たり良好!
◆土地面積約117.03坪あり
◆2003年10月築で木・鉄筋コンクリート造の建物面積約55.66坪の4LDKです
◆ホームエレベーター付/太陽光発電付のオール電化住宅です
◆駐車場は並列2台分あり(高さ2.3m以上あり)+オープンガレージ1台可
◆第一種低層住居専用地域の閑静住宅街です
◆阪急「夙川駅」徒歩7分/JRさくら夙川駅・徒歩15分
◆阪急「夙川駅」周辺にお買い物施設や飲食店・銀行など生活施設が整っています |
Bk27804
|
西宮市苦楽園五番町5−11 |
19,800万円 |
阪急甲陽線 苦楽園口駅 |
− 22分 |
618.32m2 235.96m2 |
3LDK 鉄骨造 |
H13/03 居住中 |
|
  
|
◆ひな段立地で陽当たり良好!
◆西宮市内を望む眺望あり♪
◆土地面積約187.04坪あり
◆建物面積約71.37坪の3LDKです
◆2001年(平成13年)築で2012年(平成24年)にエスバイエルにて約3500万円かけてリフォーム済
◆LDK約47.5帖あり/閑静な住宅街です
◆駐車場は3台分あり
|
Bk27415
|
芦屋市六麓荘町21−4 |
38,500万円 |
JR東海道線 JR芦屋駅 |
10分 9分 |
657.85m2 359.17m2 |
4LDK 鉄骨鉄筋コンクリート造 |
H17/11 空家 |
|
 
|
◆南東向き陽当たり良好!
◆南ひな壇立地で芦屋市内と大阪湾一望の眺望あり♪
◆土地面積約198.99坪(657.84u)あり
◆2005年(平成17年)築のSRC造で建物面積約108.64坪の4LDKです
◆建物面積約189.64坪(626.91u)の4LDKです
◆駐車場は4台分あり
|
Bk26978
|
芦屋市東山町9−19 |
45,000万円 |
JR東海道線 JR芦屋駅 |
− 9分 |
245.55m2 400.02m2 |
2LDK 鉄筋コンクリート造 |
H24/01 空家 |
|
 
|
◆南向き陽当たり通風良好!
◆土地面積約74.27坪あり
◆2012年1月築のRC造です
◆JR「芦屋駅」徒歩9分/阪急「芦屋川駅」徒歩9分
◆ファミリリーマート芦屋東山町店・徒歩3分/東山公園・徒歩3分/尼崎信用金庫芦屋店・徒歩4分/セブンイレブン芦屋東山町店・徒歩4分/芦屋東山郵便局・徒歩5分/いかりスーパー芦屋店・徒歩5分 |