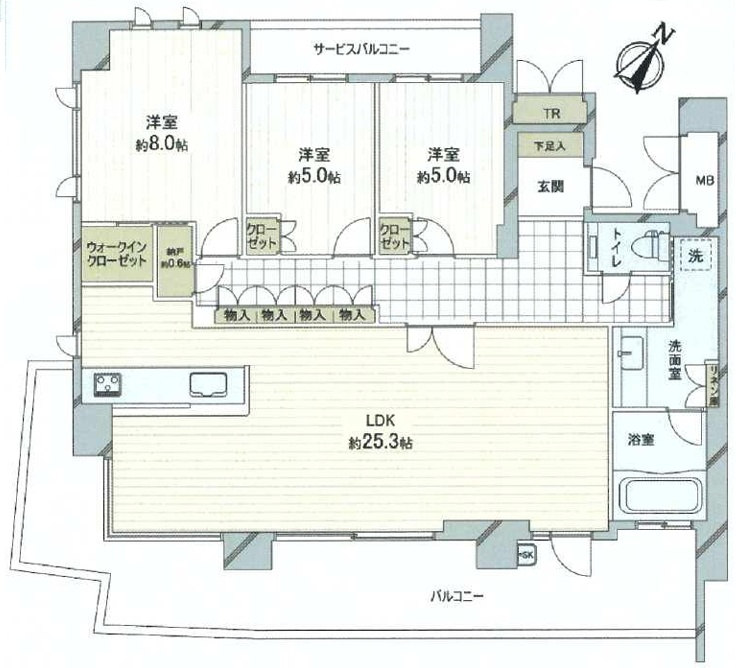
 Bm25897
|
西宮市苦楽園五番町2−36 |
ロイヤルヴィラ苦楽園1号棟
 4,180万円 |
阪急神戸線 夙川駅 |
13分 3分 |
167.12m2 42.7m2 |
4SLDK 3/6 |
1979/08 ( 築46年 ) 空家 |
|
  
|
◆南東向き南東×南西×北西角部屋で陽当たり通風良好!
◆専有面積167.12uの4SLDKです/最上階・3階のお部屋で眺望あり
◆LDKは約30.0帖あり/LDKは2面採光で明るいです/全居室に窓とあり/洋室約8帖にもトイレあり/トイレ2カ所あり/南東側と南西側の3カ所にバルコニー合計42.70uあり/玄関前にトランクルームあり/オートロックあり
◆2024年3月末リフォーム完成渡し:システムキッチン交換/ユニットバス交換/洗面化粧台交換/トイレ交換/給湯器交換/建具交換/フローリング張替(L−40)/クロス張替/CF貼替/畳表替/バルコニー塗装/ハウスクリーニング/等
◆敷地内平面駐車場・空き有り(11,000円/月)
◆ペット飼育可(規約あり)
◆阪急「夙川駅」へバス13分「苦楽園五番町」バス停まで徒歩3分・「苦楽園口駅」へバス10分「苦楽園五番町」バス停まで徒歩3分/JR「芦屋駅」へバス12分「苦楽園五番町」バス停まで徒歩3分 |
Bm27970
|
西宮市樋之池町27−53 |
樋之池町アーバンライフ 4,480万円 |
阪急甲陽線 苦楽園口駅 |
− 14分 |
78.16m2 6.25m2 |
2SLDK 4/7 |
1997/12 ( 築28年 ) 居住中 |
|
  
|
◆南向き陽当たり通風良好!/4階のお部屋で眺望あり♪
◆専有面積78.16uの3LDKです
◆LDKは約16帖あり/全洋室に窓と収納あり/ウォークインクローゼットは約4.5帖あり
◆敷地内駐車場・空き有り(16,000円〜23,000円/月)
◆ペット飼育可(規約あり)
◆阪急「苦楽園口駅」徒歩14分
◆関西スーパー・徒歩3分/樋之池公園・徒歩3分/コープ苦楽園・徒歩6分
◆人気の北夙川小学校まで徒歩10分です |
Bm25244
|
西宮市豊楽町1−13 |
パレ・シェール苦楽園北夙川通り 4,780万円 |
阪急甲陽線 苦楽園口駅 |
− 7分 |
75.69m2 8.51m2 |
2LDK 5/5 |
2000/08 ( 築25年 ) 空室 |
|
  
|
◆南向き南西東の3方角部屋で陽当たり通風良好!
◆2000年(平成12年)8月築で外観は総タイル貼りの瀟洒なマンションです
◆専有面積75.69uの2LDKです/最上階・5階のお部屋で眺望あり
◆LDKは約22.4帖あり/LDKは南側と西側に窓あり/全居室に窓と収納あり/バルコニーは南側と西側の2カ所にあり
◆令和5年8月室内リフォーム済:クロス全室張替/キッチンコンロ新調/フローリング張替/CFフロア張替/ユニットバス新調(暖房乾燥機付)/洗面化粧台新調/トイレ新調/網戸新調/照明器具新設/給湯器新調/窓枠・建具修理/ハウスクリーニング/等
◆敷地内駐車場・権利付(管理費3,500円+修繕積立金1,000円=合計4,500円)
◆阪急「苦楽園口駅」徒歩7分・「夙川駅」徒歩16分
◆人気の北夙川小学校・徒歩1分/樋之池公園・徒歩4分/夙川センター(ショッピングセンター)・隣接/コープ苦楽園・徒歩5分/関西スーパー苦楽園店・徒歩6分/いかりスーパー夙川店・徒歩6分 |
Bm26722
|
西宮市老松町1−37 |
サンクタス苦楽園北夙川通り 4,780万円 |
阪急甲陽線 苦楽園口駅 |
− 12分 |
78.63m2 7.92m2 |
3LDK 5/5 |
2013/07 ( 築12年 ) 空家 |
|
  
|
◆ワイドスパン南向き陽当たり通風良好!
◆2013年(平成25年)7月築で外壁はタイル貼りです
◆5階のお部屋で西宮市内を望む眺望あり
◆専有面積78.63uの3LDKです
◆LDKは約18.7帖あり/LDはガス温水式床暖房付/システムキッチンはハンドシャワー水栓・ビルトイン浄水器・食洗機付/全居室に窓と収納あり/浴室はオートバスとミストサウナ機能付の暖房乾燥機あり/玄関前にアルコーブあり
◆敷地内駐車場・空き有り(14,000円〜17,000円/月)
◆ペット2匹まで飼育可(規約あり)
◆阪急「苦楽園口駅」徒歩12分・「夙川駅」徒歩16分
◆関西スーパー苦楽園店・徒歩3分/コープ苦楽園・徒歩3分/樋之池公園・徒歩4分/樋之池郵便局・徒歩4分/市立中央図書館越木岩分室・徒歩5分/市民サービスセンター越木岩分室・徒歩5分
◆人気の北夙川小学校区です(徒歩10分) |
Bm27795
|
西宮市高塚町7−145 |
ブリリア夙川高塚町 6,480万円 |
阪急神戸線 夙川駅 |
− 13分 |
82.3m2 11.47m2 |
3LDK 1/4 |
2023/07 ( 築2年 ) 居住中 |
|
  
|
◆南東向き陽当たり良好!
◆2023年(令和4年)10月に(株)東京建物旧分譲
◆専有面積82.30uの3LDKです/南ひな壇で西宮市内を望む眺望あり♪
◆LDKは約17.1帖あり /LDの2ケ所に床暖房付/オープン型のキッチンカウンターでガラストップコンロと食洗機・浄水器付/全居室にウォークインクローゼットあり/浴室は1418サイズでミストカワック機能の暖房乾燥機あり/Low-E複層ガラス仕様/専用庭あり/玄関前横にトランクルーム0.27u付/アウトポール設計
◆グランドエントランス横にオーナーズラウンジあり/共用部のガーデンテラスからは六甲山系が望めます/24時間365日対応のALSOK警備システムを導入
◆敷地内駐車場・空き無し7,500円〜17,000円/月
◆ペット2匹まで飼育可(規約あり)
◆阪急「夙川駅」徒歩13分/JR「さくら夙川駅」徒歩20分/山手幹線を走るバスあり
◆高塚公園・徒歩2分/仲ノ池・徒歩7分/芦屋翠ケ丘郵便局・徒歩12分/夙川グリーンプレイス・徒歩13分/コープミニ大谷・徒歩13分 |
Bm27858
|
西宮市桜町1−62 |
ジオ苦楽園桜町 6,490万円 |
阪急甲陽線 苦楽園口駅 |
− 9分 |
100.23m2 13m2 |
4LDK 1/4 |
2014/07 ( 築11年 ) 空室 |
|
  
|
◆南向き南西北の3方角部屋で陽当たり通風良好!
◆2014年(平成26年)7月に阪急不動産(株)旧分譲です
◆専有面積100.23uの4LDKです/ ◆南ひな壇立地で開放感あり♪
◆LDKは約19.0帖あり/LDはガス温水式床暖房付/システムキッチンは浄水器と食洗機・ガラストップコンロ付/全洋室に窓と収納あり/廊下に収納あり/室内窓は断熱効果の高いlow-eガラス採用/1620サイズの浴室はミストサウナ機能付の暖房乾燥機付で魔法瓶浴槽です/トイレは手洗いカウンター付/バルコニーにスロップシンク付/玄関前にアルコーブあり
◆新築時の設計住宅性能評価書と建設住宅性能評価書付/24時間監視システム付/敷地内の共用部に防犯カメラ設置
◆ペット2匹まで飼育可(規約あり)
◆阪急「苦楽園口駅」徒歩9分
◆豊楽公園・徒歩1分/樋之池公園・徒歩7分/いかりスーパー夙川店・徒歩9分/コープ苦楽園・徒歩9分
◆人気の北夙川小学校まで徒歩4分 |
 Bm28217
|
西宮市高塚町7−145 |
ブリリア夙川高塚町 9,480万円 |
阪急神戸線 夙川駅 |
− 13分 |
89.52m2 11.47m2 |
4LDK 4/4 |
2023/07 ( 築2年 ) 空家 |
|
  
|
◆南東向き陽当たり良好!
◆2023年(令和4年)10月に(株)東京建物旧分譲
◆専有面積82.30uの4LDKです/最上階・4階のお部屋で西宮市内を望む眺望あり♪
◆LDKは約17.9帖あり /LDの2ケ所に床暖房付/オープン型のキッチンカウンターでガラストップコンロと食洗機・浄水器付/全居室に収納あり/浴室は1418サイズでミストカワック機能の暖房乾燥機あり/Low-E複層ガラス仕様/専用庭あり/玄関前横にトランクルーム0.39u付/アウトポール設計
◆グランドエントランス横にオーナーズラウンジあり/共用部のガーデンテラスからは六甲山系が望めます/24時間365日対応のALSOK警備システムを導入
◆敷地内駐車場・空き無し7,500円〜17,000円/月
◆ペット2匹まで飼育可(規約あり)
◆阪急「夙川駅」徒歩13分/JR「さくら夙川駅」徒歩20分/山手幹線を走るバスあり
◆高塚公園・徒歩2分/仲ノ池・徒歩7分/芦屋翠ケ丘郵便局・徒歩12分/夙川グリーンプレイス・徒歩13分/コープミニ大谷・徒歩13分 |
Bm27590
|
西宮市相生町3−28 |
ジオグランデ夙川相生町 10,000万円 |
阪急神戸線 夙川駅 |
− 2分 |
96.54m2 6.87m2 |
3LDK 1/5 |
2013/07 ( 築12年 ) 空家 |
|
  
|
◆南向き南西北角部屋で陽当たり通風良好!
◆平成25年7月に阪急不動産(株)旧分譲・竹中工務店(株)施工で専有面積96.54uの3LDKです
◆LDKは約21.7帖あり/キッチンはディスポーザー付/洋室約10.0帖はウォークインクローゼット付/南側は防音2重サッシ/浴室は1620サイズで窓あり/玄関前に門扉付の専用ポーチあり
◆エレベーターは1邸〜4邸につき1基あり駐車場と直結しています/敷地内駐車場・空き有り(18,000円〜25,000円/月)
◆ペット2匹まで飼育可(規約あり)
◆阪急「夙川駅」徒歩2分/JR「さくら夙川駅」徒歩10分/阪神「香櫨園駅」徒歩14分
◆駅近立地で付近にお買い物施設や銀行・飲食店などが揃っています
◆駅近でありながら閑静な住宅街です |
Bm28104
|
西宮市南越木岩町15−19 |
グランドメゾン苦楽園ザ・ハウス 25,000万円 |
阪急甲陽線 苦楽園口駅 |
− 4分 |
138.15m2 5.25m2 |
3LDK 5/5 |
2012/02 ( 築13年 ) 空室 |
|
  
|
◆南向き南東西角部屋で陽当たり通風良好!
◆2024年(令和6年)2月に積水ハウス施工の新地君入居住宅です
◆専有面積138.15uの3LDKです/最上階・5階お部屋で眺望あり
◆LDKは約33.9帖あり/洗面化粧台はダブルボウルを採用/浴室は暖房乾燥機付/複層ガラス/新築時にBELS評価書取得!第三者機関の性能評価付きの安心住宅です
◆敷地内駐車場・空き有り(18,000円〜30,000円/月)
◆ペット飼育可(規約あり)
◆阪急「苦楽園口駅」徒歩4分・「夙川駅」徒歩13分/JR「さくら夙川駅」徒歩22分
◆樋之池公園・徒歩1分/コープ苦楽園・徒歩3分/関西スーパー苦楽園店・徒歩5分/いかりスーパー夙川店・徒歩7分
◆人気の北夙川小学校区です |