|
||||||
| 種目 | 所在地 | 土地面積 建物面積 |
構造 間取 |
|||
|---|---|---|---|---|---|---|
| 中古戸建 | 西宮市堀切町1−9 |
503.82m2 ( 152.4坪 ) 174.85m2 ( 52.89坪 ) |
木造 5SLDK |
|||
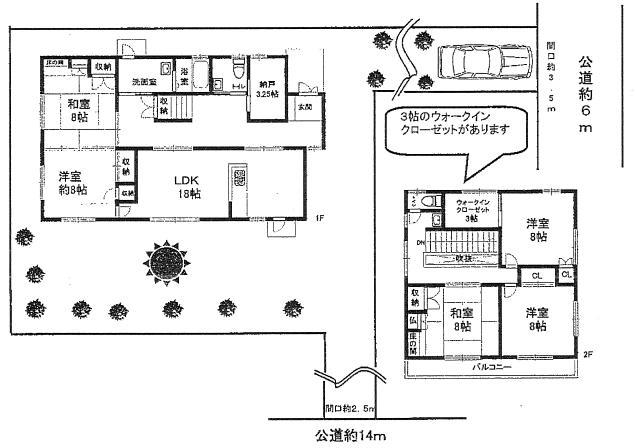
◆南側公道と東側公道に面し陽当たり良好!
◆土地面積503.82u(約152.40坪)あり
◆現パナソニックホームズ施工で建物面積約52.98坪の53SLDKです
◆LDKは約18帖あり/全居室に窓あり/広い南庭あり
◆阪神「香櫨園駅」徒歩6分・「西宮駅」徒歩18分/JR「さくら夙川駅」徒歩15分/阪急「夙川駅」徒歩18分
◆夙川公園・徒歩1分/上葭原公園・徒歩3分/西宮市立図書館・徒歩4分/サンディ香櫨園店・徒歩6分/セブンイレブン西宮香櫨園店・徒歩7分/スーパーマンダイ西宮前浜町店・徒歩14分
◆人気の香櫨園小学校・浜脇中学校区です
| 物件番号 | Bk28142 | |||||||||||||||||
|---|---|---|---|---|---|---|---|---|---|---|---|---|---|---|---|---|---|---|
| 交通 | 阪神本線 香櫨園駅まで 徒歩6分 JR東海道線 さくら夙川駅まで 徒歩15分 阪急神戸線 夙川駅まで 徒歩18分 |
学校区 | 小学校区:香櫨園小学校 100m 中学校区:浜脇中学校 850m |
|||||||||||||||
| 築年月 | H08/07 ( 築29年 ) | 接道 | 東 6m(幅員) 公道 3.6m(接面) 南 14.9m(幅員) 公道 2.8m(接面) |
|||||||||||||||
| 建ぺい率 | 容積率 | 現況 | 空家 | 引渡時期 | 即時 | 駐車場 | 3台可 | 私道面積 | - | 用途地域 | 第一種中高層住居専用地域 | 取引対応 | 仲介 | |||||
|
ローンを組むにあたり、月々の返済額をシミュレーションします。
|
||||||||||||||||||
地図
|
|
位置情報に関するご注意:おおよその場所であり、正確ではない場合があります。
![]()
- 株式会社エースホーム
- TEL:0797-38-0500
- FAX:0797-38-5888










