|
||||||
| 種目 | 所在地 | 土地面積 | 建築条件 | |||
|---|---|---|---|---|---|---|
| 売地 | 西宮市苦楽園二番町18−40 |
372m2 ( 112.53坪 ) | 条件無 | |||
◆東向き陽当たり良好!
◆東側道路幅員約5.4mに間口約11.91mが面す
◆建築条件なし/お好きなハウスメーカーや工務店で建築可能です
◆更地になりました
◆閑静な住宅街です
◆阪急「夙川駅」へバス12分「苦楽園」バス停まで徒歩9分/JR「芦屋駅へバス12分「苦楽園」バス停まで徒歩9分/阪急「甲陽園駅」徒歩21分
| 物件番号 | Bt28055 | 売り土地 | |||||||||||||||||
|---|---|---|---|---|---|---|---|---|---|---|---|---|---|---|---|---|---|---|
| 交通 | 阪急神戸線 夙川駅まで バス12分 停歩9分 JR東海道線 JR芦屋駅まで バス12分 停歩9分 阪急甲陽線 甲陽園駅まで 徒歩21分 |
学校区 | 小学校区:苦楽園小学校 300m 中学校区:苦楽園中学校 500m |
|||||||||||||||
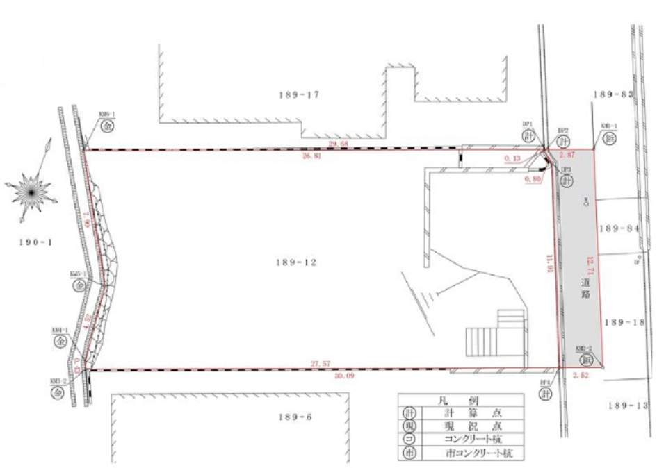
| 接道 | 東 5.4m(幅員) 私道 11.91m(接面) | 私道面積 | 31.81m2 ( 9.62坪 ) | |||||||||||||||
| 現況 | 更地 | 引渡時期 | 即時 | |||||||||||||||
| 建ぺい率 | 40% | 容積率 | 100% | |||||||||||||||
| 用途地域 | 第一種低層住居専用地域 | 取引態様 | 仲介 | |||||||||||||||
| 坪単価 | 48.69万円 | |||||||||||||||||
|
ローンを組むにあたり、月々の返済額をシミュレーションします。
|
||||||||||||||||||
地図
|
|
位置情報に関するご注意:おおよその場所であり、正確ではない場合があります。
![]()
- 株式会社エースホーム
- TEL:0797-38-0500
- FAX:0797-38-5888












