|
||||||
| 種目 | 所在地 | 土地面積 | 建築条件 | |||
|---|---|---|---|---|---|---|
| 売地 | 芦屋市朝日ケ丘町27−30 |
59.25m2 ( 17.92坪 ) | 条件無 | |||
◆南東向き陽当たり良好!
◆東南側公道幅員約4.0mに間口約6.6mが面した整形地です
◆建築条件無し/お好きなハウスメーカーや工務店で建築可
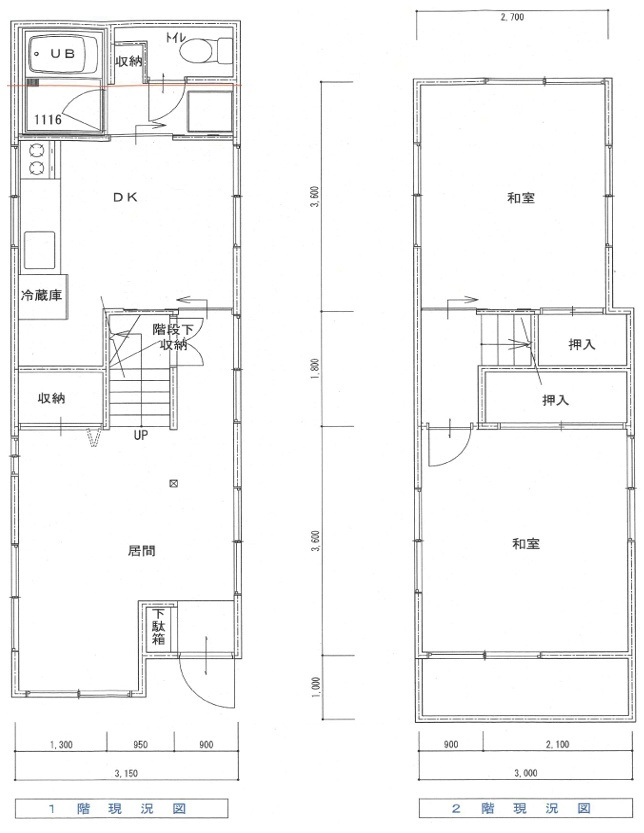
◆古家あり
◆JR「芦屋駅」徒歩18分/阪急「芦屋川駅」徒歩18分/JR「芦屋駅」バス6分「水道橋」バス停まで徒歩4分/阪急「芦屋川駅」バス13分「水道橋」バス停徒歩4分
◆朝日ケ丘南緑地・徒歩1分/ウエルシア芦屋朝日ケ丘店・徒歩3分/コープミニ東山・徒歩5分/いかりスーパー芦屋店・徒歩8分
| 物件番号 | Bt28043 | 売り土地 | |||||||||||||||||
|---|---|---|---|---|---|---|---|---|---|---|---|---|---|---|---|---|---|---|
| 交通 | JR東海道線 JR芦屋駅まで バス18分 停歩3分 阪急神戸線 芦屋川駅まで バス18分 停歩3分 JR東海道線 JR芦屋駅まで バス6分 停歩4分 |
学校区 | 小学校区:朝日ケ丘小学校 600m 中学校区:山手中学校 2300m |
|||||||||||||||
| 接道 | 南東 4m(幅員) 公道 6.6m(接面) | 私道面積 | ||||||||||||||||
| 現況 | 上物有 | 引渡時期 | 相談 | |||||||||||||||
| 建ぺい率 | 60% | 容積率 | 200% | |||||||||||||||
| 用途地域 | 第一種中高層住居専用地域 | 取引態様 | 仲介 | |||||||||||||||
| 坪単価 | 143.94万円 | |||||||||||||||||
|
ローンを組むにあたり、月々の返済額をシミュレーションします。
|
||||||||||||||||||
地図
|
|
位置情報に関するご注意:おおよその場所であり、正確ではない場合があります。
![]()
- 株式会社エースホーム
- TEL:0797-38-0500
- FAX:0797-38-5888









