|
|||||
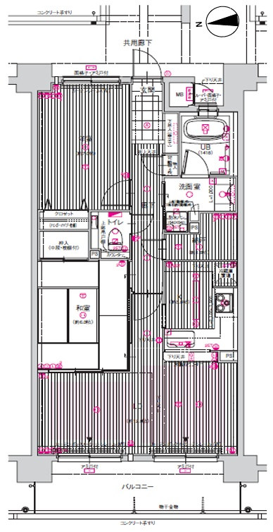
| 種目 | 所在地 | 専有面積 | 間取 構造 |
管理費 修繕積立費 |
|
|---|---|---|---|---|---|
| 中古マンション | 西宮市老松町13−24 |
68.26m2 ( 20.64坪 ) | 2LDK 鉄筋コンクリート造 |
7,200円 9,400円 |
|
◆西向き陽当たり良好!/最上階・7階のお部屋で眺望あり♪
◆2010年(平成22年)2月築で外壁がタイル貼りのマンションです
◆専有面積68.26uの2S LDKです
◆L字型の屋い麺キッチン/浴室は窓あり
◆2025年9月末リフォーム完了渡し:フローリング上貼り/クロス張替/キッチン水栓交換/ガラストップコンロ交換/等
◆敷地内駐車場・空きあり(8,000円〜14,000円/月)
◆ペット飼育可(規約あり)
◆阪急「苦楽園口駅」徒歩16分
◆苦楽園南公園・徒歩1分/松谷公園・徒歩4分/関西スーパー苦楽園店・徒歩5分/コープ苦楽園・徒歩6分/ニシイチドラッグ・徒歩6分/樋之池公園・徒歩7分
◆人気の北夙川小学校区です
| 物件名 | Bm27953 | エスリード苦楽園老松町 | |||||||||||||||||
|---|---|---|---|---|---|---|---|---|---|---|---|---|---|---|---|---|---|---|
| 交通 | 阪急甲陽線 苦楽園口駅まで 徒歩16分 | 学校区 | 小学校区:北夙川小学校 1120m 中学校区:苦楽園中学校 1680m |
|||||||||||||||
| 築年月 | H22/02 ( 築16年 ) | 階/階建 | 7階/地上7階 地下1階建 | |||||||||||||||
| バルコニー面積 /方向 |
10.8m2 ( 3.26坪 )/南 | 現況 引渡時期 |
空室 即時 |
|||||||||||||||
| 総戸数 | 88戸 | 管理形態 管理人状況 |
全部委託 日勤 |
|||||||||||||||
| 駐車場 | 空有 | 駐車場料金 | 8,000円 | |||||||||||||||
| 用途地域 | 第一種中高層住居専用地域 | 取引態様 | 仲介 | |||||||||||||||
|
ローンを組むにあたり、月々の返済額をシミュレーションします。
|
||||||||||||||||||
地図
|
|
位置情報に関するご注意:おおよその場所であり、正確ではない場合があります。
![]()
- 株式会社エースホーム
- TEL:0797-38-0500
- FAX:0797-38-5888
3,650万円







