2025/12/15 17:32:40
次回更新予定 2025年12月16日

28208:中古戸建 中古一戸建て

価格 5,200万円
所在地 西宮市神園町10-32
交通 阪急甲陽線 甲陽園駅まで 徒歩6分
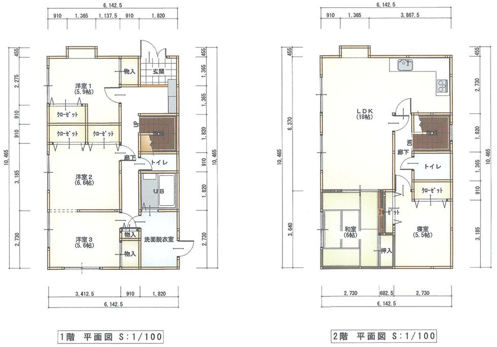
間取 5LDK
土地面積 183.33m²(55.45坪)
建物面積 141.3m²(42.74坪)
私道面積 -
築年月 1988/07
学区 小学校区:甲陽園小学校 700m
中学校区:大社中学校 850m
建物構造 木造
階建 地上2階建
建ぺい率 60%
容積率 200%
地目 宅地
用途地域 第一種中高層住居専用地域
土地権利 所有権
取引態様 仲介
引渡時期 即時
セットバック  
接道 北西 4m(幅員) 公道
諸費用  
他法条例  
建築確認番号  
取引条件有効期限 令和07年12月29日
特色

陽当たり良好、駐車場あり、駅徒歩10分以内

コメント

◆陽当たり良好!
◆土地面積約55.45坪あり
◆建物面積約42.74坪の5LDKです
◆LDKは2面採光で明るいです/全居室に窓と収納あり
◆駐車場あり
◆阪急「甲陽園駅」徒歩6分
◆阪急オアシス甲陽園店・徒歩5分/いかりスーパー甲陽園店・徒歩6分/ファミリーマート甲陽園駅前店・徒歩7分

周辺地図

位置情報に関するご注意:おおよその場所であり、正確ではない場合があります。