西宮市桜町3-34

価格 4,480万円

1/9

物件番号「27574」をお伝えください。

電話でお問合せ

物件情報

価格 4,480万円
住所
西宮市桜町3-34 地図
住居表示
交通 阪急甲陽線 苦楽園口駅まで 徒歩15分
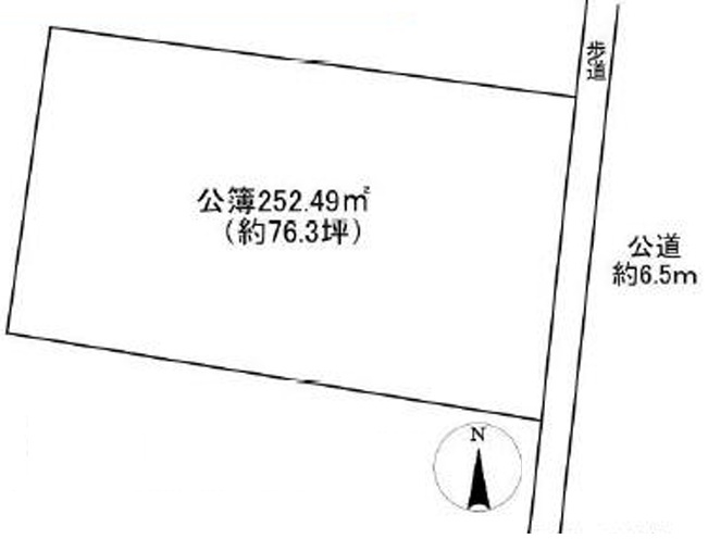
土地面積 252.49m²
坪単価 58.65万円
私道面積 -
接道 東 6.5m(幅員) 公道 12m(接面)
用途地域 第一種低層住居専用地域
建ぺい率 40%
容積率 100%
建築条件 条件無
現況 更地
引渡時期 即時
物件名 売り土地
小学校区 北夙川小学校
中学校区 苦楽園中学校
取引態様 仲介
特徴 ◆南ひな壇立地の東向きで陽当たり通風良好!
◆東側公道幅員約6.5mに間口約12.90m面した整形地です
◆西宮市内を望む眺望あり
◆更地につき即建築可
◆建築条件なし/お好きなハウスメーカーや工務店で建築可
◆阪急「苦楽園口駅」徒歩15分
◆樋之池公園・徒歩3分/ローソン西宮樋之池町店・徒歩4分/コープ苦楽園・徒歩5分/関西スーパー苦楽園店・徒歩6分
※掲載されている物件データが現状と異なる場合は現状を優先します。

更新情報

情報更新日 2025年12月17日
次回更新予定日 2025年12月17日
取引条件有効期限 2025年12月17日

ローンシミュレーション

物件価格 4,480万円
頭金 万円
金利
借入期間
再計算
月々の返済額
年間の返済額
返済総額
利息合計
※ 毎回の返済額が開始から終了まで均等となる「元利均等返済」で算出しています。
※ 金利は期間中固定となる固定金利を採用しています。
※ 月々の返済額は小数点以下を繰り上げしております
※ シミュレーションでの結果は、あくまでも目安で、概算になります。実際にローン契約をする際は、詳細を金融機関にご確認ください。
※ 実際のローン契約時には諸費用・税金(手数料や印紙税、保証料など)が別途かかりますので、契約の際にご確認ください。

物件番号「27574」をお伝えください。

電話でお問合せ
電話でお問合せ メールでお問合せ
メールでお問合せ
OK